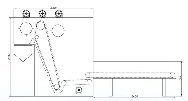
将捆包的纤维均匀松开,不损坏纤维,使用均棉轮、针帘、剥棉轮。磅秤可使用电子式或机械式秤量控制。适合各种比例不同的原料生产。本机械保养维护容易,操作简便。


使用电力
马达0.75kw (1HP) 2个
马达0.375kw (1/2HP)2个