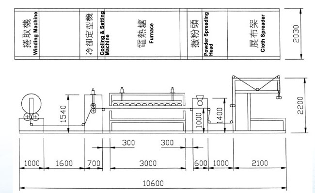
使用电力
电热管 2.5kw 12组
马达 1.5kw (2HP) 2个
马达 0.75kw (1HP) 1个
马达 0.375kw (1/2HP) 1个